What we do?


About AC Design

About Us

Find out how we became a multi disciplinary firm for engineering and architecture

Contact us

Contact our friendly team today to get a much better understanding of your project

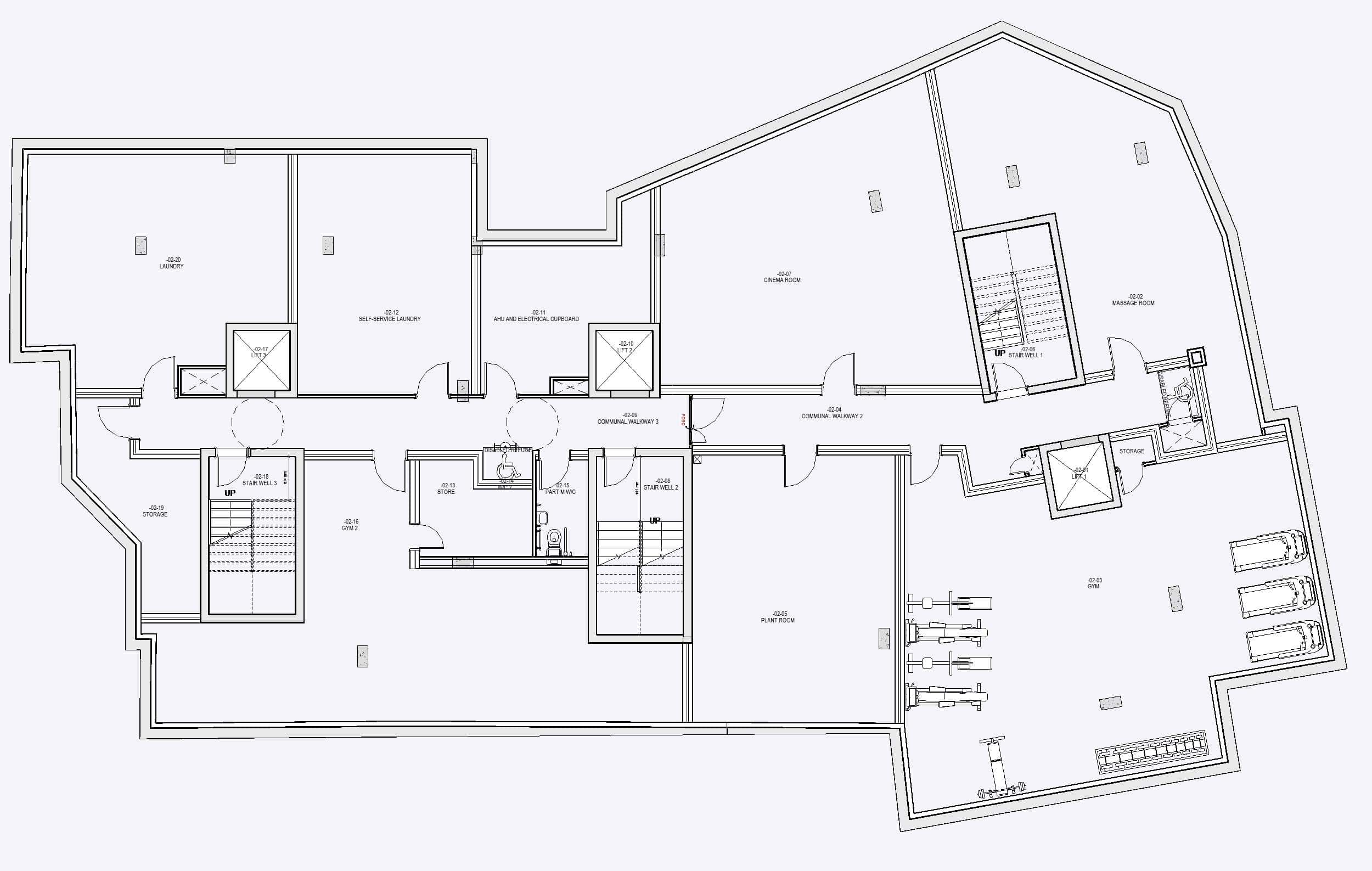
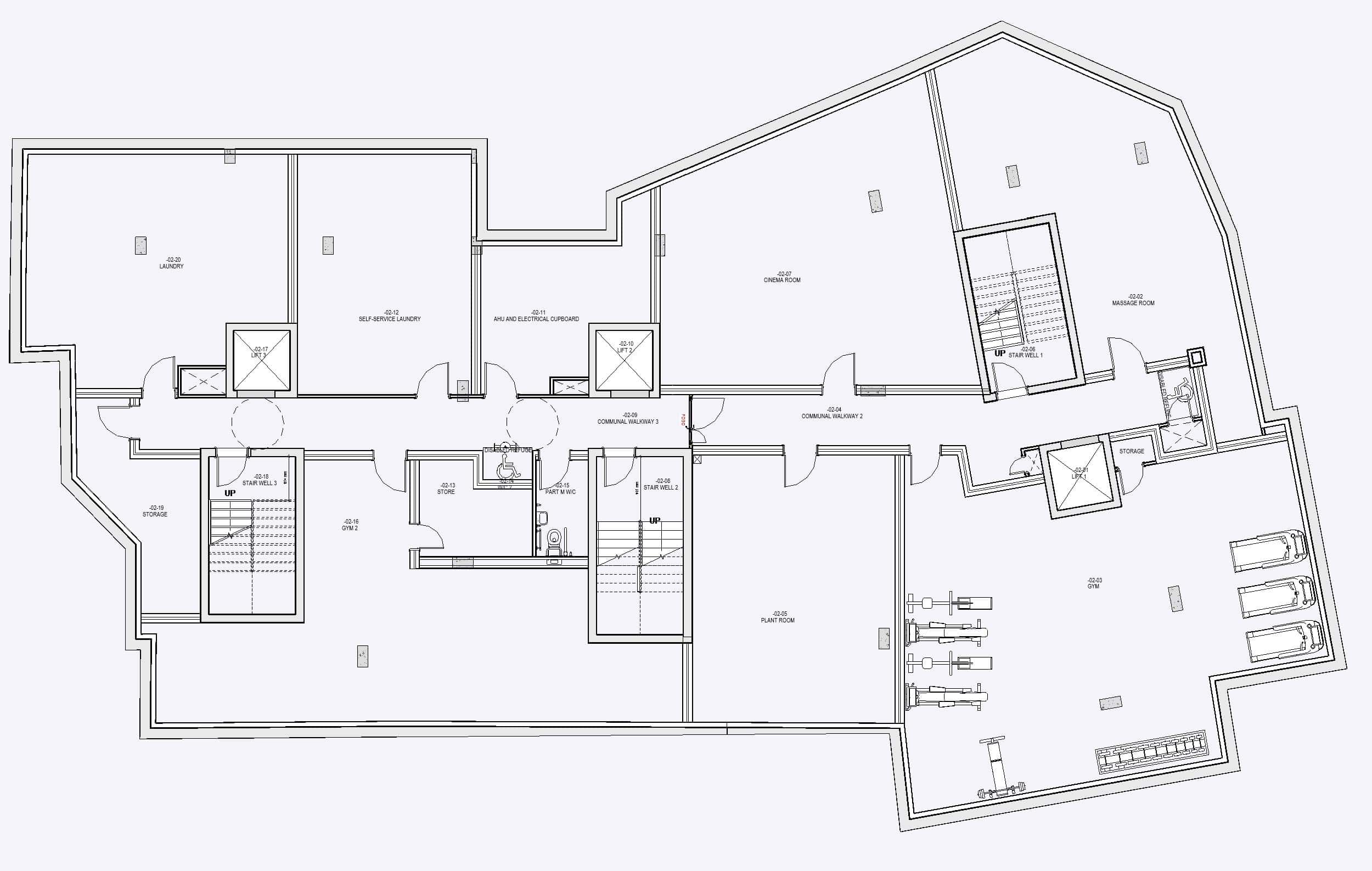
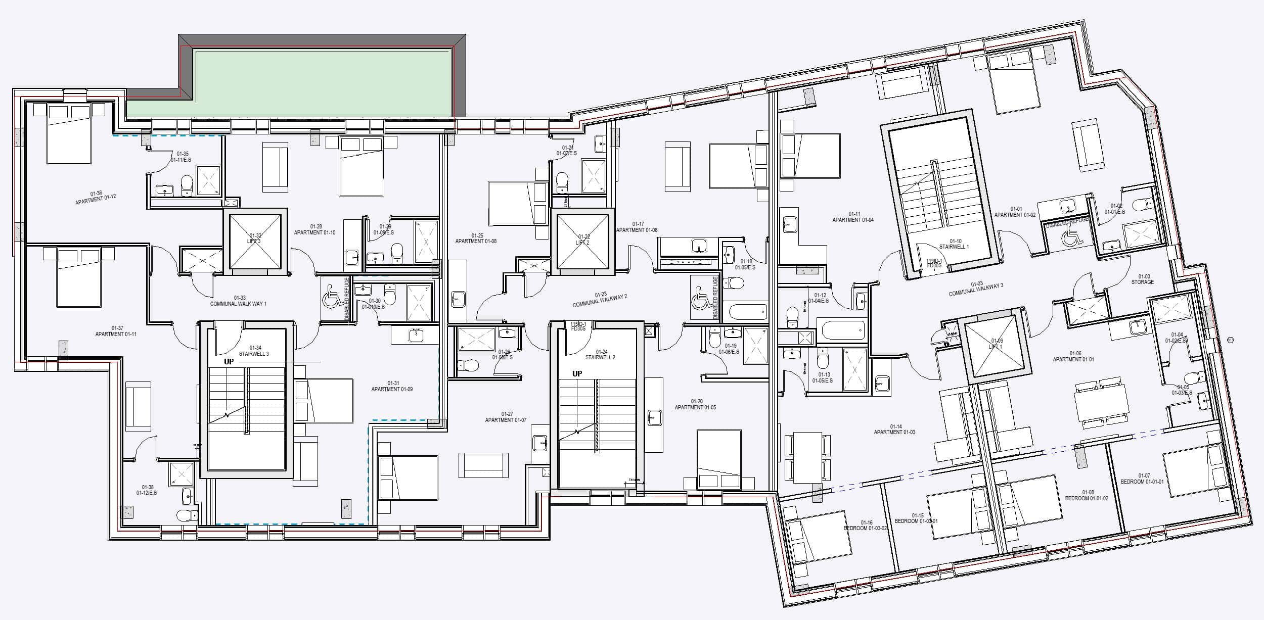
Fulham RC Frame & Planning

b

Completed

2024

Planning authority

Hammersmith & Fulham

 

b

Floor Area Added

1800sqm

When a 50-room apart hotel project in Fulham Road came to us, the previous team had designed it bigger than approved plans, planning permission had lapsed, and water was pouring into what should've been a straightforward double basement. Sometimes the most challenging projects teach you the most about problem-solving under pressure...

Read more

Book a call with us

Schedule a free 30-minute consultation with our experienced design professionals.

Mon
25
May
Tue
26
May
Wed
27
May
Thu
28
May
Fri
29
May
Mon
1
Jun
New Build Apart Hotel
Fulham Road apart hotel RC frame structural engineering construction site showing double basement excavation

Client Stories

Don’t just take our word for it – hear directly from satisfied clients about their experience working with us. These real stories demonstrate why businesses trust us to deliver outstanding results every time

Rahul Kukar
I appointed AC Design Solutions for a challenging new build project - demolishing an existing house and replacing it with 7 new flats in Isleworth. The team provided a comprehensive service including architectural design, structural engineering ...
Read More
Rahul Kukar
I appointed AC Design Solutions for a challenging new build project - demolishing an existing house and replacing it with 7 new flats in Isleworth. The team provided a comprehensive service including architectural design, structural engineering calculations, building regulations drawings, and preparation of all the technical reports required for planning (drainage, energy, daylight/sunlight, arboricultural, etc.). The project was taken to Hounslow Planning Committee and we achieved unanimous approval on the first attempt. AC Design Solutions were very responsive throughout, handled all the pre-application consultations, and prepared a strong case that addressed all the planning concerns. Their knowledge of local planning policies and building regulations was excellent, and they coordinated all the specialist consultants we needed. The building regulations drawings were detailed and compliant, ready for submission. I would highly recommend AC Design Solutions for residential development projects in West London. Really pleased to have these guys on my team - they are absolutely on the ball, and I look forward to doing many more projects with them in expansion of my portfolio.
Rahul Kukar
Rahul Kukar
Will Sharpey
GF and Loft Extension PW, Archy, Structures Party Wall, Architecture, Structural and Civil Engineer services. Ground floor extension and loft conversion / extension. All executed in a timely manner at a very reasonable rate.
Will Sharpey
GF and Loft Extension PW, Archy, Structures Party Wall, Architecture, Structural and Civil Engineer services. Ground floor extension and loft conversion / extension. All executed in a timely manner at a very reasonable rate.
Will Sharpey
Will Sharpey
ADAM LORD
If you are looking for honest, straight talking professional advice. Look no further. Extremely efficient and very good at following up on their work. Thanka again and I look forward to working with you again ...
Read More
ADAM LORD
If you are looking for honest, straight talking professional advice. Look no further. Extremely efficient and very good at following up on their work. Thanka again and I look forward to working with you again in the future.
ADAM LORD
ADAM LORD
Gita Kocareva
I apply online and straight away had response. All questions answered . Fast reply to any e mails. All paperwork ready within 3 working days. Thank you.
Gita Kocareva
I apply online and straight away had response. All questions answered . Fast reply to any e mails. All paperwork ready within 3 working days. Thank you.
Gita Kocareva
Gita Kocareva
Laura Saperstein
AC Design worked quickly and professionally on my job seeking a regularisation certificate from building control. I can recommend them
Laura Saperstein
AC Design worked quickly and professionally on my job seeking a regularisation certificate from building control. I can recommend them
Laura Saperstein
Laura Saperstein
Christopher Thompson Royds
Super efficient, good communication, and very quick turn around of the structural report which Buildings Control approved. Really happy and would use again. Thanks Guys
Christopher Thompson Royds
Super efficient, good communication, and very quick turn around of the structural report which Buildings Control approved. Really happy and would use again. Thanks Guys
Christopher Thompson Royds
Christopher Thompson Royds
Ali X
Brilliant staff, always friendly and always available, we’ve done two very successful projects with them and looking forward to working with them again.
Ali X
Brilliant staff, always friendly and always available, we’ve done two very successful projects with them and looking forward to working with them again.
Ali X
Ali X
Gang Hu
We had a great experience with AC Design Solutions. They responded to our request for structural drawings and calculations swiftly and the whole work was delivered very quickly with excellent quality. Highly recommended.
Gang Hu
We had a great experience with AC Design Solutions. They responded to our request for structural drawings and calculations swiftly and the whole work was delivered very quickly with excellent quality. Highly recommended.
Gang Hu
Gang Hu
Ali
Had a great experience with AC Design, the customer service was great and they responded to our questions promptly. Turnaround for designs were quick too. I especially appreciated having a call with the engineer as ...
Read More
Ali
Had a great experience with AC Design, the customer service was great and they responded to our questions promptly. Turnaround for designs were quick too. I especially appreciated having a call with the engineer as it helped us understand why the designs were constructed in a certain way. Highly recommend this company if you require structural drawings done
Ali
Ali
Godwin Temisa
With excellent communication and quick turnaround, they designed a floor plan that will allow more light to come to the bedrooms. I am impressed by how they sectioned the rooms and even managed to create ...
Read More
Godwin Temisa
With excellent communication and quick turnaround, they designed a floor plan that will allow more light to come to the bedrooms. I am impressed by how they sectioned the rooms and even managed to create a large study. Based on my experience, I would like to recommend their service.
Godwin Temisa
Godwin Temisa