Carlton Court Aparthotel: Westminster
Completed
2024
Planning authority
Westminster
Floor Area Added
166sqm
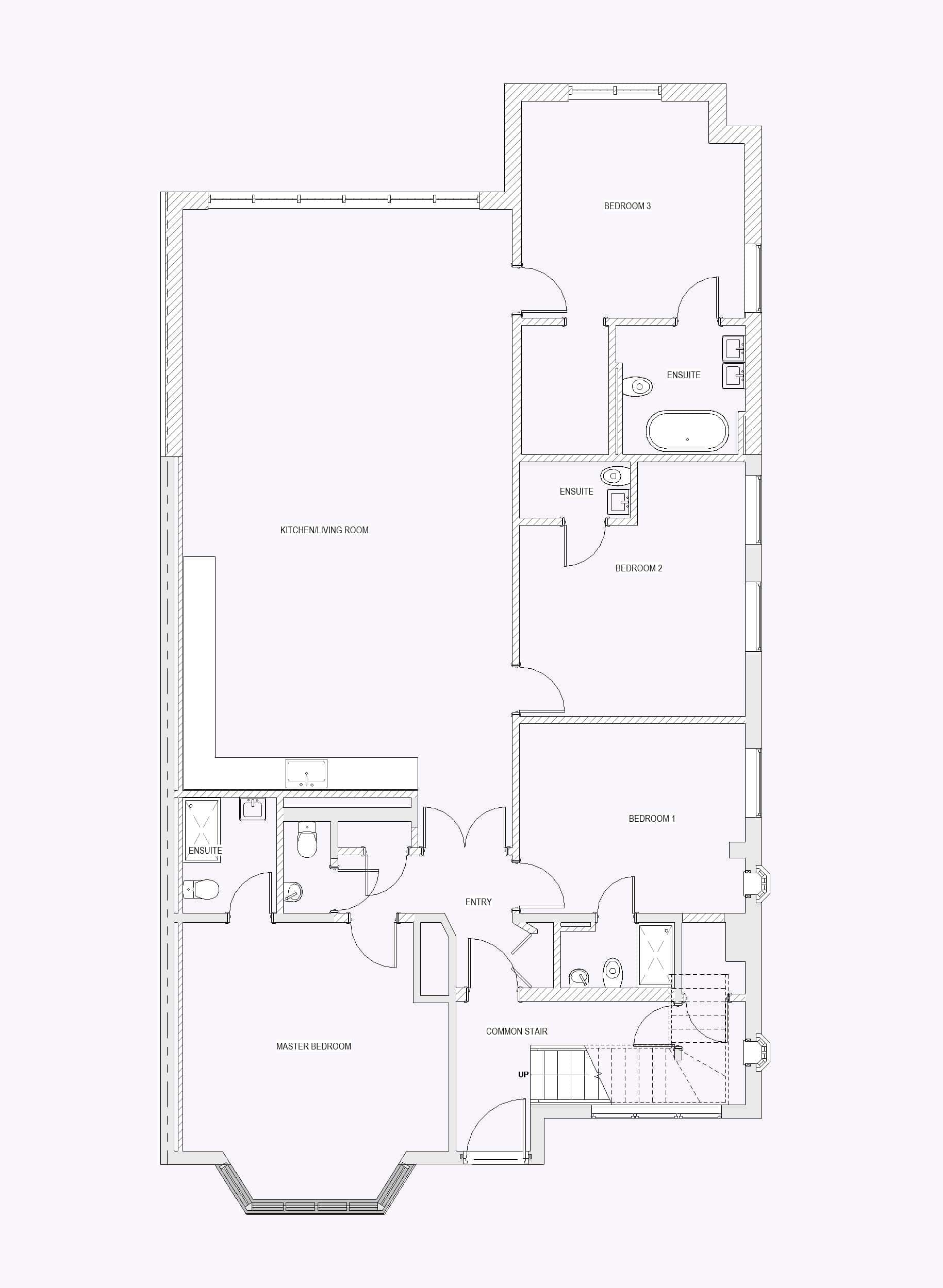
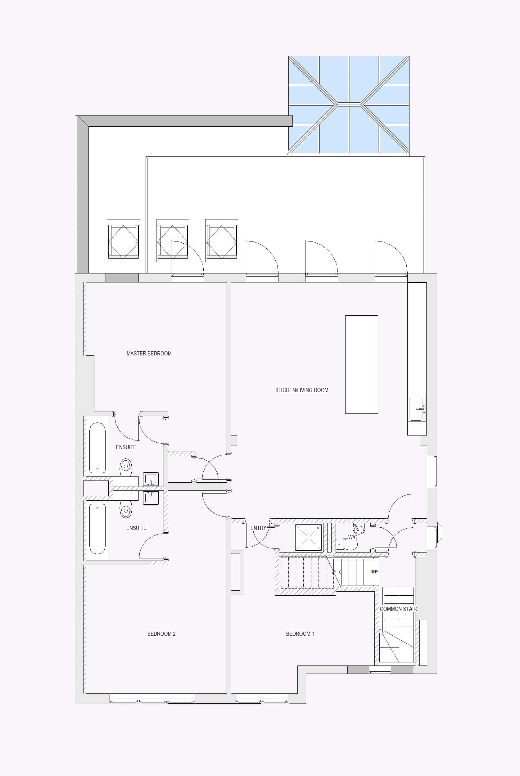
When our client bought 120 Carlton Court in Maida Vale, getting planning permission in Westminster looked impossible. The building was in terrible condition. Squatters had moved in, windows were broken, and the once-beautiful property in the City of Westminster had fallen apart. But where others saw problems, this investor saw opportunity.
At first, the plan was simple: convert the building into flats. But the market told a different story. The aparthotel sector was growing fast, and the tax benefits made good business sense. The client switched to a 33-room aparthotel with a luxury reception. This choice would be both smart and challenging...
Read moreBook a call with us
Schedule a free 30-minute consultation with our experienced design professionals.
Select a time for
alt="West Hampstead Extension Refurbs"
style="position:absolute;left:-9999px;width:1px;height:1px;" />
Client Stories
Don’t just take our word for it – hear directly from satisfied clients about their experience working with us. These real stories demonstrate why businesses trust us to deliver outstanding results every time




