Getting planning permission in Hounslow for backland sites is tricky. Add a conservation area? Even trickier.
A developer came to us with a site at 51 Thornbury Road in Isleworth. It sat in the Spring Grove Conservation Area. The local planning authority had strict rules. Neighbours had concerns.
The plan was simple. Knock down a six-bedroom house. Build seven flats that look like two pairs of semi-detached houses. Here’s how we got Hounslow planning permission approved.
The Site Challenge: Backland Development in a Conservation Area
51 Thornbury Road sits behind other properties. It’s near Feltham and Brentford. You reach it through a narrow driveway. The driveway is 36 metres long. It runs between properties on Thornbury Road and Weston Gardens.
The site is in the Spring Grove Conservation Area. This area covers parts of Isleworth, Osterley, and Gunnersbury.
Three big problems came up straight away. Vehicle access was tight. Construction would be difficult. The visual impact mattered.
Local authorities care about heritage. This matters in Spring Grove. Nearby areas include Heston, Cranford, Bedfont, and Hanworth to the west. To the east, you’ll find Chiswick, Strand on the Green, Bedford Park, and Turnham Green.
Hounslow planning rules were clear. The proposed development had to:
- Keep the conservation area’s character
- Respect neighbours’ privacy and views
- Provide good amenity space
- Meet planning and building control standards
We needed to prove seven new homes could work. They couldn’t damage the conservation area. They couldn’t bother neighbours.
Pre-Application Strategy with Hounslow Planning
We met with Hounslow’s planning department twice. This happened before we submitted the formal application. These meetings were crucial.
First meeting? We suggested a three-storey mansion block. The council said no. Too big for the site.
Second meeting? We changed the design. Semi-detached houses converted to flats. Much better. This version eventually got approved.
The pre-application meetings taught us what Hounslow wanted:
- Design must match traditional character
- Keep it at two storeys
- Make it look like traditional housing
- Get separation distances right
This shaped our final drawings. We know Hounslow planning well. We’ve done similar work across Feltham, Brentford, Heston, and other parts of the borough.
Understanding Hounslow Council’s Application Process
Hounslow Council has a clear process. It works the same everywhere. Oxford Road in Feltham. Nelson Road in Hanworth. Fraser Road in Heston. William Hogarth Lane in Chiswick. Same process.
1. Pre-Application Consultation
This step is optional. But it’s smart. Hounslow Council gives advice before you formally submit.
For this Thornbury Road project, we had two meetings. The site is near Hatton Road and Grove Park. The guidance was worth it. We learned what the local planning authority wanted.
2. Formal Planning Application Submission
Once drawings are ready, you submit. Hounslow Council validates your application.
Householder proposals take 8 weeks. These include extensions and alterations. Major developments take 13 weeks.
3. Statutory Consultation Period
Hounslow Council tells neighbours. For this Isleworth site, forty neighbours got letters. Site notices went up near Weston Gardens.
4. Case Officer Assessment
A planning officer checks everything. They review the proposed development against local policies. They look at design. They check impacts on neighbours. They assess parking. They review heritage issues.
This matters in conservation areas. Places like Bedford Park, Strand on the Green, and Turnham Green get extra attention.
5. Planning Committee or Delegated Decision
Most applications get decided by planning officers. This one went to Hounslow Council’s Planning Committee. A councillor requested it. The committee met on 5th February 2026. They approved it.
6. Decision Notice and Conditions
Hounslow Council sends a decision notice. It includes conditions. You must deal with these before construction starts. They cover materials. They cover landscaping. They cover construction management. They cover building control.
This helps property owners everywhere. Portland Avenue in Feltham. Armstrong Road in Hanworth. Oliver Road in Brentford. Any street in Hounslow. You’ll know what to expect.
Planning Application Drawings: Our Design Response
AC Design Solution prepared detailed drawings. They showed how the proposed development would fit the conservation area.
Traditional Architectural Character:
- Two-storey building
- Pitched, hipped roofs
- Central chimney
- Bay windows on the front
- Brick walls with slate/clay roof tiles
- Metal-framed windows
- Looks like two pairs of semi-detached houses joined together
This matches Spring Grove’s style. It fits with nearby areas like Lampton, Clayponds, and Grove Park.
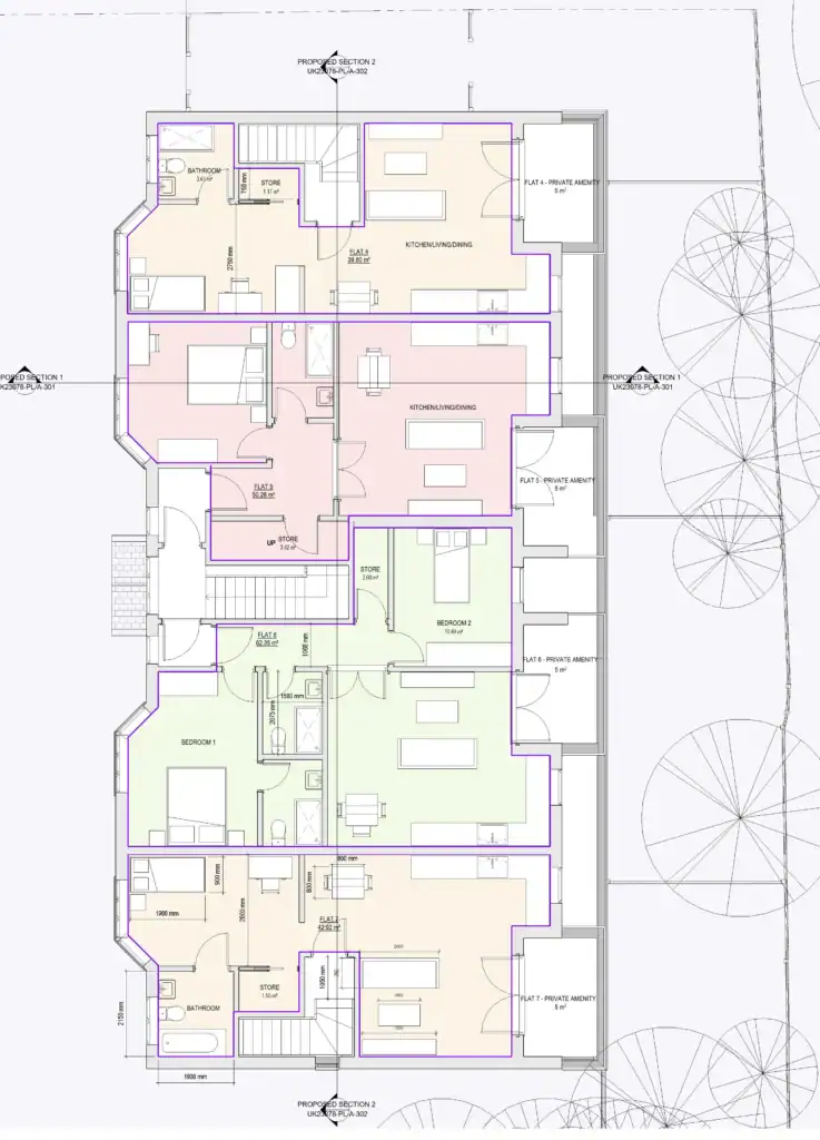
Unit Mix Meeting Housing Need: Ground floor has three flats:
- 2 x two-bedroom flats
- 1 x one-bedroom flat
First floor has four flats:
- 2 x studio flats
- 1 x one-bedroom flat
- 1 x two-bedroom flat
Net result? One more family-sized unit than the knocked-down house.
The conversion created new homes. The site stayed residential. No change of use applications needed.
Amenity Space Provision:
- Private balconies for first-floor flats
- Private gardens for ground-floor units
- 101sqm communal space
The statutory requirement is 83sqm. We beat it.
Our drawings proved compliance. All units met Hounslow’s space standards. Local authorities enforce the Nationally Described Space Standards. We exceeded them.
Addressing Neighbour Concerns and Statutory Consultation
Hounslow Council’s process includes neighbour consultation. Six responses came in. They arrived during the 21-day period. All from residents near Thornbury Road.
These concerns are common. We see them across the borough. Oxford Road and Nelson Road in the west. William Hogarth Lane and Oliver Road in the east. Conservation areas like Bedford Park and Strand on the Green.
Neighbours worried about four things:
- Privacy loss to Thornbury Road properties
- Narrow access won’t work for construction vehicles
- Overdevelopment of the site
- Not enough amenity space
The case officer’s report addressed each concern. Hounslow Council planning officers reviewed our submissions carefully.
Privacy and Overlooking:
Our drawings showed distances. 17-21 metres to Thornbury Road properties. This matches London Plan guidance. The guidance applies across Hounslow, Merton, Camden, and Acton.
Tree removal would create more direct views. But the distances keep privacy acceptable.
Site Access:
We proposed car-free development. This solved the tight access problem. No on-site car park needed.
Conditions secured:
- Pedestrian and cycle access only
- Parcel drop-off point near the highway
- Construction Logistics Plan
- Residents can’t get parking permits
Design Quality:
One neighbour praised it. They liked the “attention to detail regarding style, finished and matching the local vernacular.”
Our traditional design worked. This conservation area includes Bedford Park, Turnham Green, and Strand on the Green.
Appeal Rights and Planning Decision Process
What if Hounslow planning permission gets refused? You can appeal. The Planning Inspectorate reviews the decision. They look at the local planning authority’s process. They check the planning policies used.
We didn’t need an appeal here. Our approach got first-time approval. But we know appeal procedures. We’ve represented clients across Hounslow and neighbouring boroughs.
Common reasons for refusal in Hounslow:
- Overdevelopment that harms character (especially Chiswick, Bedford Park, Strand on the Green)
- Not enough parking (except car-free developments)
- Design doesn’t fit conservation areas
- Harm to neighbours
Our planning application anticipated these. Detailed drawings helped. Solid planning justification helped.
Building Control Considerations
Planning and building control are separate. Local authorities run both. But they’re different processes.
Hounslow planning permission covers appearance. It decides if development should happen. Building control covers safety. It makes sure everything meets regulations.
Key building control issues for this site:
Fire Safety Strategy:
Emergency vehicles can’t reach the site. The driveway is too narrow. Our Fire Strategy followed Building Regulations Part B5. It added extra fire safety measures. This compensated for the access problem.
This matters for backland locations. New planning approvals need it.
Structural Considerations:
Foundation design used local soil data. Isleworth, Feltham, and Hanworth have similar conditions. Our structural calculations covered everything. The proposed development met building regulations. Single dwelling to multiple units requires this.
Access for Building Control Inspections:
We coordinated with Hounslow Building Control. We planned inspection access despite site constraints.
This shows our integrated approach. Planning and building together. Essential for complex sites. Hounslow planning permission needs building regulation approval too.
Sustainability and Carbon Reduction
The proposed development hit 80% carbon dioxide emissions reduction. The baseline is Building Regulations Part L (2022).
How we did it:
- Better fabric specifications
- High-performance glazing
- Heat pump installation (no gas)
- Seven solar photovoltaic panels on south-facing roofs
- Water efficiency measures (105 litres/person/day)
A carbon offset payment covers the gap. £3,025 through planning conditions. This gets us to net zero. It’s a statutory requirement for new planning approvals in London. Mayoral policies demand it.
Solar panels are growing common across Hounslow. Brentford has them. Chiswick has them. Feltham, Heston, Bedfont, Cranford, and Osterley too. They meet sustainability targets.
The Planning Decision: Approval Granted
Hounslow Council’s planning committee approved it. Date? 5th February 2026. Officers recommended approval.
The case officer’s report said:
“The scheme is considered to be of a high design quality, suited to the existing site and surroundings and would provide a high standard of residential accommodation. The proposal is considered to relate well to the local character and context, reflecting the location of the site.”
One neighbour worried about outlook. Side-facing window at a property on Stanleycroft Close. The committee weighed this. Housing delivery benefits won. The limited harm was acceptable.
The proposed development delivers needed housing. Two family-sized units included. It respects Spring Grove Conservation Area character.
The decision notice confirmed no appeal needed. The developer could proceed. Building control submissions next. Then construction.
Key Lessons for Planning Permission in Hounslow
This Thornbury Road case shows what works. Five critical lessons for Hounslow planning permission:
1. Invest in Pre-Application Engagement
Two rounds of advice shaped our scheme. Hounslow Council planning officers helped. The local authority could support it.
Without this dialogue? We might have failed. Refusal and appeal would follow.
This works across the borough. Side extension applications in Feltham. Side extensions in Hanworth. Larger conversions in Chiswick, Brentford, Bedford Park.
2. Design for Context, Not Density
The three-storey mansion block would have failed. The approved two-storey design worked. Traditional features respected the conservation area.
Spring Grove, Gunnersbury, Turnham Green, Strand on the Green. All have this character.
Local planning authorities across London prioritise context. Hounslow, Merton, Camden, neighbouring boroughs. Context beats maximum density in conservation areas.
3. Solve Access Constraints Creatively
Car-free development solved our problem. No fighting for an on-site car park. No inadequate access issues.
This removed highway safety concerns. It matched Hounslow’s sustainable transport policies. Isleworth, Osterley, Heston, Cranford, Bedfont, Lampton, North Hyde all benefit.
4. Address Planning and Building Control Early
Fire strategy went in our planning application. Structural calculations too. Building control compliance too.
This proved the proposed development was buildable. Not just drawable. Essential for successful Hounslow planning applications.
5. Detailed Planning Application Drawings Matter
Our drawings showed everything. Separation distances. Window details. Materials specs. Solar panel locations. Site layout.
The local planning authority needed this detail for decision-making. Generic drawings fail. This conversion project needed specifics.
Planning Knowledge: Streets and Areas We Cover in Hounslow
AC Design Solution works across Hounslow. We secure planning permission everywhere in the borough. Extensive project experience on streets throughout.
Western Areas:
Feltham, Hanworth, Bedfont, Cranford, Heston. Hounslow town centre, North Hyde, Lampton. Projects on Oxford Road, Nelson Road, Fraser Road, Portland Avenue, Armstrong Road. Plus surrounding streets.
Central Areas:
Isleworth, Osterley, Spring Grove, Woodlands, Clayponds. Planning applications on Thornbury Road, Hatton Road. Plus neighbouring residential streets.
Eastern Areas:
Brentford, Chiswick, Gunnersbury, Turnham Green. Bedford Park, Strand on the Green, Grove Park. Conservation area properties on William Hogarth Lane, Oliver Road. Plus historic streets in Bedford Park and Chiswick.
Our specialist services:
- New planning applications for residential development
- Side extension and rear extension projects
- Loft conversion applications
- Change of use proposals
- Conservation area applications
- Planning appeal support through the Planning Inspectorate
We know Hounslow Council’s process inside out. Successful applications across hundreds of streets. Oxford Road in Hanworth to William Hogarth Lane in Chiswick.
AC Design Solution’s Specialist Role
We’re CIAT Chartered Architectural Technologists. We prepared the full planning application package for 51 Thornbury Road.
What we did:
- Site survey and existing building assessment
- Pre-application consultation coordination
- Planning application drawings (site plans, floor plans, elevations, sections)
- Design and Access Statement
- Statutory neighbour consultation response
- Response to Hounslow Council queries
- Building control strategy
- Fire safety coordination
- Solar panel integration
- Sustainability specifications
Our planning knowledge of Hounslow comes from hundreds of successful applications. Feltham, Brentford, Chiswick, Isleworth, Heston. Surrounding areas too. This let us balance housing delivery with heritage conservation.
We specialise in complex sites. Standard approaches don’t work there. Backland plots with restricted access. Conservation areas with strict alteration controls. Developments needing creative solutions. Car park provision. Refuse collection. Building control compliance.
Hounslow Planning Permission: Professional Support for Your Project
This Isleworth case shows backland development can succeed. Even in conservation areas. But you need three things. Careful design. Thorough planning application drawings. Strategic engagement with Hounslow Council.
Your property location:
- Western streets: Oxford Road, Nelson Road, Fraser Road, Portland Avenue, Armstrong Road (Feltham, Hanworth, Bedfont, Cranford, Heston)
- Central streets: Thornbury Road, Hatton Road (Isleworth, Osterley, Spring Grove, Lampton)
- Eastern streets: William Hogarth Lane, Oliver Road (Brentford, Chiswick, Gunnersbury, Bedford Park, Turnham Green, Strand on the Green)
Professional support improves your approval chances. It reduces planning appeal risk with Hounslow Council.
Your planning needs:
- Residential development anywhere in Hounslow
- Side extension or rear extension projects
- Conversion projects
- Change of use applications
- Developments in conservation areas
- Complex sites needing specialist planning knowledge
We cover the entire application process. Initial feasibility. Pre-application advice. Hounslow Council planning permission. Building control approval. Construction support.
We understand local planning authority requirements. We have established relationships. Hounslow Council planning officers across all area teams know us.
Contact AC Design Solution to discuss your Hounslow planning permission needs. We handle planning applications throughout the London Borough of Hounslow. We specialise in navigating Hounslow Council’s application process for complex sites.





